13.05.2024.

Обавештење:

У среду 15.05.2024. године организујемо посету градилишту уместо предавања и вежби.

Посета градилишту је заказана за среду 15.05.2024. године у 12 часова

Градилиште је у оквиру локације Вождове капије у улици Војводе Степе 310 (преко пута Саобраћајног факултета)

6. фаза изградње - завршна фаза изградње комплекса, са делом подземне гараже, припадајућом инфраструктуром, зеленим и слободним површинама, објекта спратности По+Пр+12, укупне бруто изграђене површине 17.428,97m2

Скуп студената: код капије градилишта у улици Војводе Степе 310 у 12:00 часова

Пожељно је да студенти понесу ХТЗ опрему (шлем и рефлектјући прслук) ако је поседују

и адекватну обућу за кретање по градилишту

предавач
мр Слободан Јововић

 

26.03.2024.

Обавештење:

Предавања и вежбе у среду 27.03.2024. године се неће одржати.
У четвртак 28.03.2023. године организујемо посету градилишту уместо предавања и вежби.
Посета градилишту је заказана за четвртак 28.03.2023. године у 10 часова Градилиште је у оквиру локације Београда на води
II Фаза дела стaмбeнo-пoслoвног кoмплeкса у Блoку 23 - Фазе 2 на грађевинској парцели 23 коју чинe катастарске парцеле 1508/76, 1508/1, 1508/74, 1508/78, 1508/72, 1508/79, 1508/68 и 1508/80, све КO Сaвски вeнaц.
Скуп студената: код локомотиве плавог воза иза старе железничке станице на Савском тргу у 10:00 часова.
Пожељно је да студенти понесу ХТЗ опрему (шлем и рефлектјући прслук) ако је поседују и адекватну обућу за кретање по градилишту.

предавач

мр Слободан Јововић

09.03.2024.

Обавештење:

У среду 13.03.2024. године у 10 часова организујемо посету градилишту

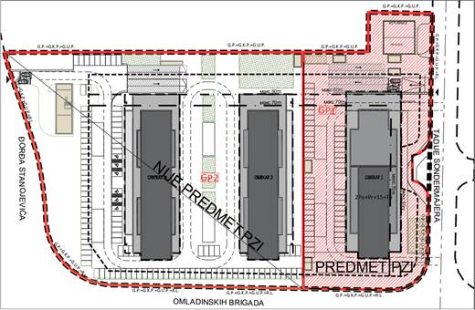
Организујемо посету градилишту „Airport City East Gate“ на изградњи пословне куле бр. 1, спратности 2По + Пр + 15 + Те

Скуп је на углу улица Омладинских бригада и Тадије Солдермајера у среду 13.03.2024 године у 10 часова.

Пожељно је да студенти понесу ХТЗ опрему (шлем и рефлектјући прслук) ако је поседују и адекватну обућу за кретање по градилишту

предавач

мр Слободан Јововић

28.05.2023.

Обавештење:

Тест (предрок) из предмета САВРЕМЕНЕ МЕТОДЕ ТЕХНОЛОГИЈЕ И ОРГАНИЗАЦИЈЕ ГРАЂЕЊА ће се одржати у среду 31.05.2023. године од 12:00 часова

Предметни наставник
мр Слободан Јововић

21.04.2023.

Обавештење:

У среду 26.04.2023. године организујемо посету градилишту.

Посета градилишту је заказана за 26.04.2023. године у 10 часова.

Градилиште се налази у улици Саве Мишковића бр 2 на Вождовцу.

Скуп студената: код улаза на градилиште у 10:00 часова.

Пожељно је да студенти понесу ХТЗ опрему (шлем и рефлектјући прслук) ако је поседују и адекватну обућу за кретање по градилишту.

предавач

мр Слободан Јововић

19.03.2023.

Обавештење:

У среду 22.03.2023. године организујемо посету градилишту уместо предавања и вежби

Посета градилишту је заказана за 22.03.2023. године у 10 часова

Градилиште је у оквиру локације Београда на води

II Фаза дела стaмбeнo-пoслoвног кoмплeкса у Блoку 23 - Фазе 2 на грађевинској парцели 23 коју чинe катастарске парцеле 1508/76, 1508/1, 1508/74, 1508/78, 1508/72, 1508/79, 1508/68 и 1508/80, све КO Сaвски вeнaц

Скуп студената: код локомотиве плавог воза иза старе железничке станице на Савском тргу у 10:00 часова

Пожељно је да студенти понесу ХТЗ опрему (шлем и рефлектјући прслук) ако је поседују и адекватну обућу за кретање по градилишту

предавач

мр Слободан Јововић

06.03.2023.

Обавештење:

У среду 08.03.2023. године организујемо посету градилишту уместо предавања и вежби

Посета градилишту је заказана 08.03.2023. године у 10 часова

Градилиште је у Булевару краља Александра бр 142

(локација Депо, преко пута општине Звездара)

Пожељно је да студенти понесу ХТЗ опрему (шлем и рефлектјући прслук) ако је поседују

предавач 

мр Слободан Јововић

27.02.2023.

Обавештење:

У среду 01.03.2023. године предавања и вежбе ће се одржати према распореду
Посета градилишту се одлаже због лошег времена

предавач
мр Слободан Јововић